شركت Carrier بعنوان اولین كمپانی تولید كننده دستگاه های تهویه مطبوع، و پیشتاز این صنعت و صنایع جانبی آن، اولین تولیدكننده دستگاه های چیلرجذبی درجهان بوده و درحال حاضر بیشترین چیلرجذبی نصب شده كه با گذشت بیش ازچهل سال از آغاز بهره برداری اغلب آنها هنوز در بدترین شرایط آب و هوائی تضمین کننده هوای مطبوع ساختمان های این دنیا می باشند.
چیلر جذبی ابزوربشن مدل 16JB كریر از ظرفیت 100 تا 680 تن از نوع یك مرحله ای (Single effect) كه با ژنراتور بخار كم فشار (Low Pressure Steam) و یا آب داغ (Hot water) و تولید می گردند. در ایران این چیلرها توسط شرکت صنایع سرماآفرین ایران به تیراژ زیاد تولید گردید همچنین شرکت تهویه اروند نیز توانست این چیلرها را تولید کند.
اصول اولیه سیكل چیلر جذبی:
در چیلرهای جذبی 16JB از آب بعنوان مبرد در مخازنی كه تحـت خلاء هستند، استفاده میشود. چیلرها بر پایه این اصل ساده كار میكننـد كه در فـشار مطـلق پایین (خلاء)، آب گرما را میگـیرد و در درجه حرارت پایـین بخـار میشود (میجوشد).
به عنوان مثال: در فشار مطلق 25/0 اینچ (mm 16) جیوه، آب در درجه حرارت (°C 4)°F 40 میجوشد. مبرد با گرفتن حرارت از یك سیال دیگر (كه معمولاً آب است) تبخیر میشود و آن سیال دیگر را خنك میكند. سپس سیال خنك شده میتواند برای سرمایش مورد استفاده قرار گیرد.
برای پیوسته ساختن فرآیند سرمایش، مبرد تبخیر شده (بخار آب) توسط محلول لیتیوم بروماید جذب میشود. جذب بخار مبرد توسط جاذب، فشار دستگاه را به میزان كافی پایین نگاه میدارد تا عملیات تبخیر ادامه یابد.
سپس محلول لیتیوم بروماید رقیق شده به یك مخزن جداگانه پمپ میشود كه در آنجا توسط بخار یا آب داغ، حرارت میبیند تا بخار آب جذب شده را آزاد كند. آب مایع نسبتاً خنك از یك منبع خارجی (برج خنک کن) حرارت كافی را از بخار آب میگیرد و آنرا برای استفاده دوباره در سیكل سرمایش مجدداً به مایع تبدیل میكند. محلول مجدداً غلیظ شده لیتیوم بروماید برای ادامه سیكل جذب به مخزن جاذب برگردانده میشود.

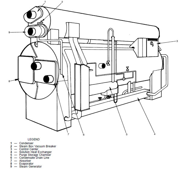
ساختار دستگاه
پوسـته بالایی و پایینی در برگیرنده چهار قسمت اصلی چیلر جذبی است: اواپراتور، ابزوربر، ژنراتور، و كندانسور (شكل1).
پوسته پایینی شامل اواپراتور و ابزوربر می باشد. در اواپراتور، آب (مبرد) تبخیر میشود و سیال عامل در فرآیند سرمایش یا تهویه هوا را خنك میكند. در ابزوربر آب تبخیر شده توسط محلول لیتیوم بروماید جذب میشود.
پوسته بالایی شامل ژنراتور وكندانسور است. درژنراتور محلول رقیق لیتیوم بروماید حرارت میبیند و بخار آب خود را از دست میدهد. بخار آب آزاد شده در فرآیند تغلیظ، در قسمت كندانسور به آب مایع تبدیل میگردد.
چیلرهای جذبی 16JB همچنین دارای این تجهیزات هستند: یك مبدل حرارتی چیلرهای جذبی برای بهبود بازده دستگاه، یك سیستم پرج (purge) برای تنظیم خلاء دستگاه با خارج كردن مواد غیر قابل تقطیر، دو پمپ بسته برای به گردش در آوردن مبرد و محلول لیتیوم بروماید و كنترلرهای مختلف عملکرد، تنظیم ظرفیت و سیستم های ایمنی برای کارکرد مطمئن و صحیح دستگاه.
مدارهای جریان سیال
شكل 2 مدارهای اصلی جریان را در چیلر جذبی 16JB نشان میدهد. آب سرد شونده از داخل لوله های اواپراتور میگذرد و بوسیله تبخیر آب (مبرد) كه بر روی سطح خارجی لوله ها پاشیده میشود، خنك میگردد بخار مـبرد به داخل قـسمت ابزوربر هدایت میشـود و به وسـیله محلول لیتیوم بروماید كه بر روی لوله های ابزوربر پاشیده میشود، جذب میگردد. حرارتی كه از آب خنك شونده گرفته شده، از طریق بخار جذب شده به مایع خنك كننده ای كه درون لوله های ابزوربر جریان دارد، منتقل میشود.
محلول لیتیوم بروماید چیلر جذبی با جذب آب رقیقتر میشود و برای تغلیظ مجدد به داخل ژنراتور پمپ میشود. محلول رقیق در ژنراتور بوسیله بخار یا آب داغ گرم میشود تا آب مبرد جذب شده را تبخیر نماید. بخار مبرد حاصل به سمت كندانسور هدایت شده و بر روی لوله های حاوی آب خنك كننده كندانسور تقطیر میگردد. مایع مبرد حاصله به اواپراتور برگردانده میشود تا سیكل مبرد جدیدی را شروع كند.

محلول غلیظ هم از ژنراتور به ابزوربر برگردانده میشود تا سیكل محلول جدیدی را شروع كند. درحین عبور از مسیر، محلول از داخل یك مبدل حرارتی عبور میكند كه در آنجا حرارت از محلول غلیظ به محلول رقیق پمپ شده به سمت ژنراتور انتقال داده میشود. این انتقال حرارت بازده سیكل محلول را با گرمایش مجدد محلول رقیق نسبتاً سرد قبل از ورود به ژنراتور و پیش سرمایش محلول غلیظ قبل از ورود به ابزوربر، افزایش میدهد.
نمودار تعادلی و سیكل محلول چیلرهای جذبی:
سیكل محلول بر روی نمودار تعادلی محلول لیتیوم بروماید و آب (شکل 3) قابل تشریح است. محور سمت چپ نمودار نمایانگر فشار بخار محلول درشرایط تعادل و محور سمت راست نشانگر درجه حرارت اشباع متناظر با محور سمت چپ برای مبرد (آب) است.
محور پایین، غلظت محلول چیلر جذبی رانشان میدهد. به عنوان مثال غلظت 60% لیتیوم بروماید نشان دهنده 60 درصد وزنی لیتیوم بروماید و 40 درصد وزنی آب است.
خطوط منحنی، در راستای قطر از چپ به راست، خطوط درجه حرارت محلول هستند (كه نباید با خطوط درجه حرارت اشباع اشتباه گرفته شوند) خط منحنی تكی در قسمت راست و پایین نمودار نشانگر خط كریستالیزه شدن است. در هر درجه حرارت و غلظتی درسمت راست این خط، محلول كریستالیزه شده، و سبب محدود كردن معبر جریان و نتیجاً موجب انسداد جریان در چیلر جذبی میشود.
خطوط تقریباً منحنی كه از پایین نمودار شروع میشود، خطوط وزن مخصوص هستند. برای تعیین غلظت محلول لیتیوم بروماید، وزن مخصوص را بوسیله هیدرومتر اندازه بگیرید و درجه حرارت محلول را تعیین كنید سپس محل تقاطع این دو را برروی نمودار به دست آورید (شكل 3) سپس مقدار متناظر آن را روی محور پایین بخوانید و درصد لیتیوم بروماید چیلر جذبی را تعیین كنید.
رسم سیكل محلول
در شكل 3 نمونه ای از سیكل محلول جذبی از نقطه 1 تا نقطه 7 كشیده شده است. مقادیر نمونه برای هر نقطه درجدول 1 ارائه شده است. توجه داشته باشید كه این مقادیر در شرایط كاری و بارهای مختلف تغییر میكند.
- نقطه 1: نشان دهنده محلول غلیظ است زمانی كه پس از پاشش از نازلهای ابزوربر، شروع به جذب بخار آب میكند.
- نقطه 2: نشان دهنده محلول رقیق در خروجی ابزوربر هنگام ورود به مبدل حرارتی است.


- نقطه 3: نشان دهـــنده محلول رقیق به هـــنگام خروج از مبدل حرارتــی است. غلظـت این نقطه مسـاوی غلظت نقطه 2 اسـت ولی دما بالاتر رفته است.
- نقطه 4: محلول رقیق را در ژنراتور نشان میدهد زمانی كه تا دمای جوشیدن گرم شده است.
- نقطه 5: محلول غلیظ را در خروجی ژنراتور نشان میدهد زمانی كه پس از جوشیدن، مقداری از آب آن تبخیر شده است.
- نقطه 6: نشان دهنده محلول غلیـظ در خروجی مبدل حرارتی اسـت زمانـی كه مـقداری از گرمای خود را به محلول رقیق خروجـی از ابزوربر منتقل كرده است.
- نقطه 7: محلول غلیـظ را در ورودی نازلـهای ابزوربر نشـان میدهد كه با مقداری از محلول رقیق خروجی از ابزوربر مخلوط شده است. این محلول پس از خروج از نازل های ابزوربر در اثر پاشش، مقداری كاهش دما مییابد.
سیستم جدا كننده گازهای غیر قابل تقطیر (purge)
اجزاء اصلی و مدارهای جریان سیستم پرج چیلرهای جذبی 16JB در شكل 4 نشان داده شده است. در زمان كاركردن دستگاه، محلول لیتیوم بروماید از پمپ محلول از طریق دو خط انتقال دهنده جریان مییابد. از طریق خط انتقال A1 گازهای غیر قابل تقطیر از ابزوربر مكیده شده و در مبدل حرارتی ثانویه(B) تخلیه میشود. در مبدل حرارتی ثانویه گازهای غیر قابل تقطیر از محلول جدا شده و وارد كندانسور میشود.
گازهای غیر قابل تقطیر توسط خط انتقال A2 از كندانسور خارج شده و مجدداً وارد محلول میگردند. سپس مخلوط محلول و گازهای غیر قابل تقطیر در یك محفظه (D) جمع آوری شده و محلول به مبدل حرارتی و ابزوربر برگردانده میشود.
وقتی كه محفظه پرج از گازهای غیر قابل تقطیر پر میشود، سطح محلول در مخزن از حد معینی پائینتر میآید. در این زمان چراغی بر روی در تابلوی كنترل دستگاه روشن شده و نشان میدهد كه زمان تخلیه پرج فرا رسیده است.
برای تخلیه پرج ابتدا شیر برگشت محلول (E) و شیر پرج (L) باید بسته شود. سپس محلول توسط پمپ به داخل مخزنی هدایت میشود و مواد غیر قابل تقطیر در فشار بالاتر از فشار جو متراكم میشوند. سپس شیر تخلیه (H) باز میشود تا مواد غیر قابل تقطیر به داخل بطری تخلیه(J) روانه شوند و سپس شیر تخلیه بسته میشود. در این زمان فشار خروجی پمپ كه توسط محلول به محفظه پرج منتقل میشود، باعث میشود تا گازهای جمعآوری شده فشرده شده و به فشار بالاتر از جو برسد. در این هنگام شیر تخلیه پرج (H) باید باز شود تا گازها از طریق ظرف تخلیه پرج (J) خارج شوند و سپس شیر تخلیه پرج (H) بسته شود.
برای برگرداندن سیستم پرج به حالت خودكار، شیر برگشت (E) مجدداً باز میشود تا محلول به ابزوربر جریان یابد و شیر پرج(L) هم مجدداً باز میشود تا جمعآوری مواد غیر قابل تقطیر از كندانسور از سر گرفته شود.
عملكرد سیستم استخراج گازهای غیر قابل تقطیر پرچ به صورت خودكار، بدون وجود موتور و پیوسته است. گازهای مواد غیر قابل تقطیر از دستگاه خارج شده و حتی به هنگام خاموش بودن دستگاه نمیتوانند مجدداً به سیستم باز گردند.
برای اطلاع از روش عملی تخلیه پرج، به بخش نگهداری دستگاه و یا بر چسب راهنمای روی دستگاه مراجعه كنید.

شارژ محلول و مبرد به چیلر جذبی کریر:
جهت عملکرد مناسب دستگاه باید هر چیلر را مطابق با ظرفیت و بار برودتی آن شارژ مبرد و محلول انجام گردد جدول زیر مطابق با استاندار کریر جهت مقدار نامی آن عنوان گردیده است این مقدار براساس * بر اساس غلــظت محلول 53% حاوی Inhibitor و دمای آب خـنك شونده) °C 7) °F 44 و دمای آب خنك كننــده) °C 5/29) °F 85 وبخار psi 12 (یا دمای آب داغ معادل آن میباشد.
برای اطلاع از مقادیر نامی شارژ محلول و مبرد به دستگاه جدول زیر را ببینید.

مشخصات لوله های چیلر جذبی کریر
همچین جهت انجام تعمیرات اصولی دستگاه باید اجزای قسمت های دقیق دستگاه عنوان بررسی گردد جدول زیر اجزای کامل دستگاه و استاندار های مختلف آن میباشد.



